北京五洲电梯控制柜

📅 发布时间:2013-10-05 13:15 👁️ 浏览:0 🏷️ 标签: 电梯 控制柜

北京五洲电梯主电路:

北京五洲电梯控制柜

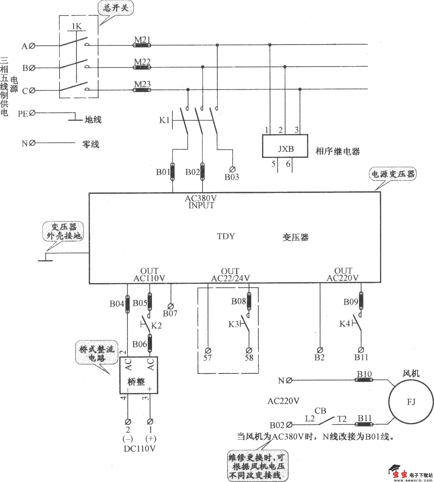
北京五洲电梯控制电源电路:

北京五洲电梯控制柜

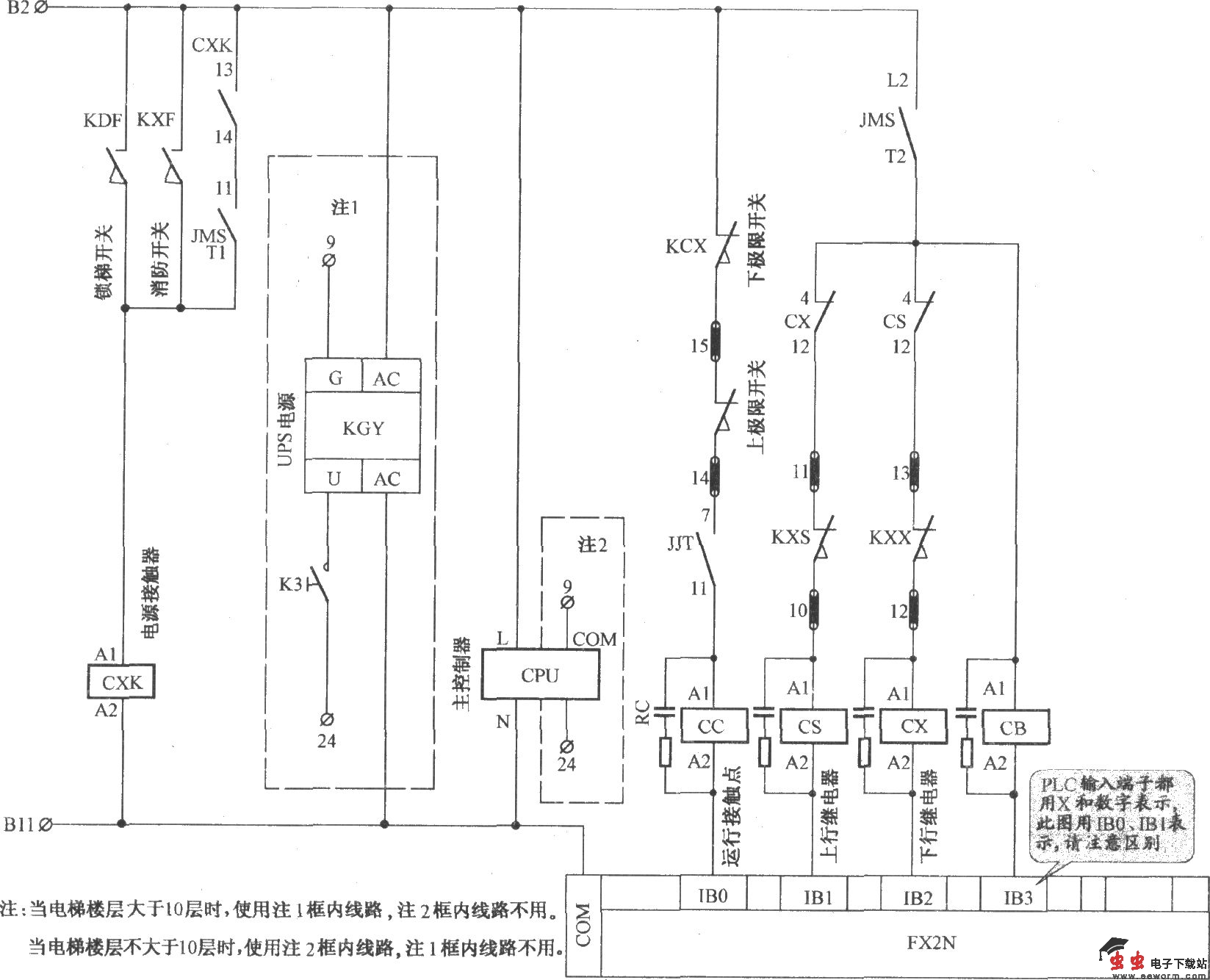
北京五洲电梯安全回路与抱闸电路:

北京五洲电梯控制柜

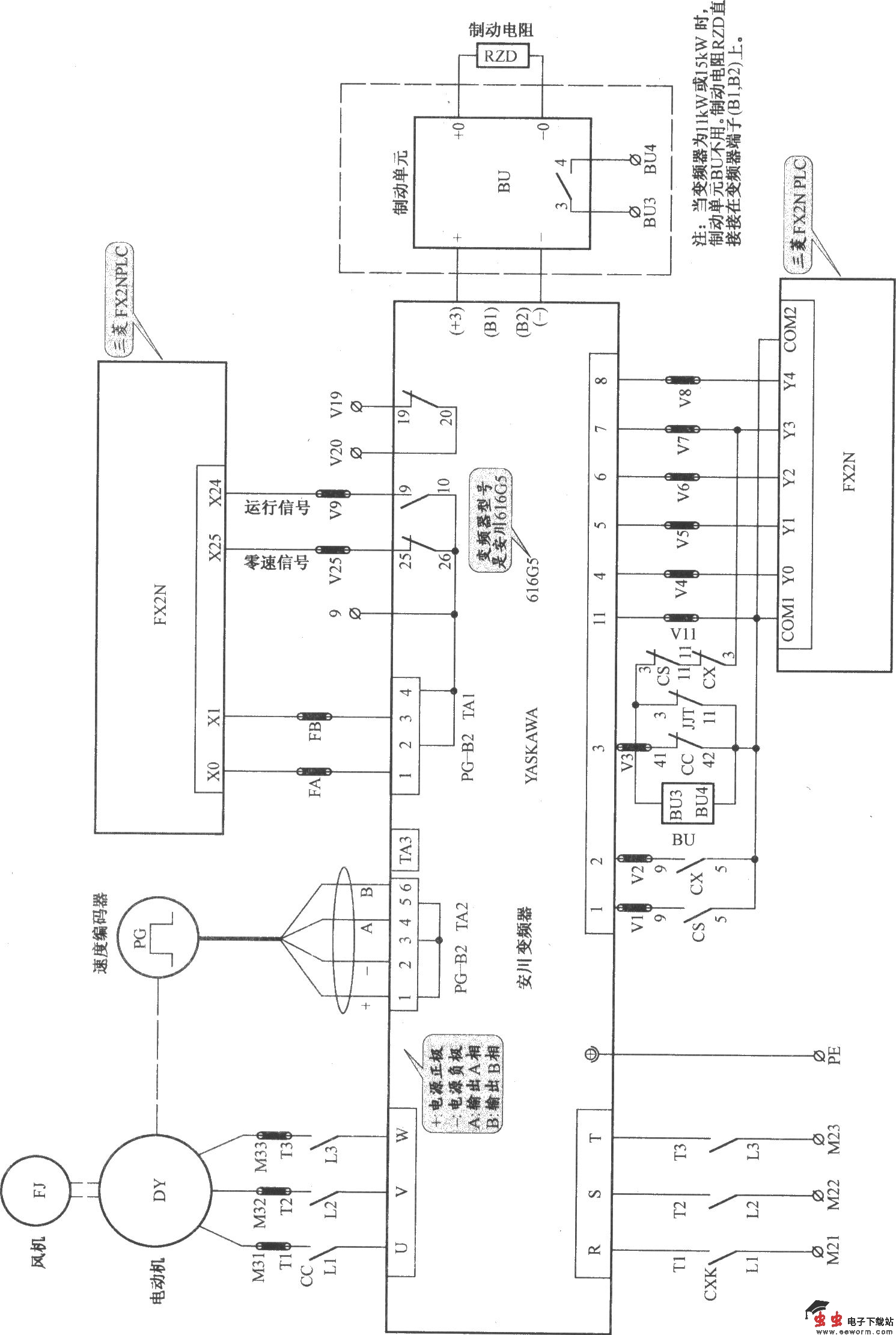
北京五洲电梯控制电路(1):

北京五洲电梯控制柜

北京五洲电梯控制电路(2):

北京五洲电梯控制柜

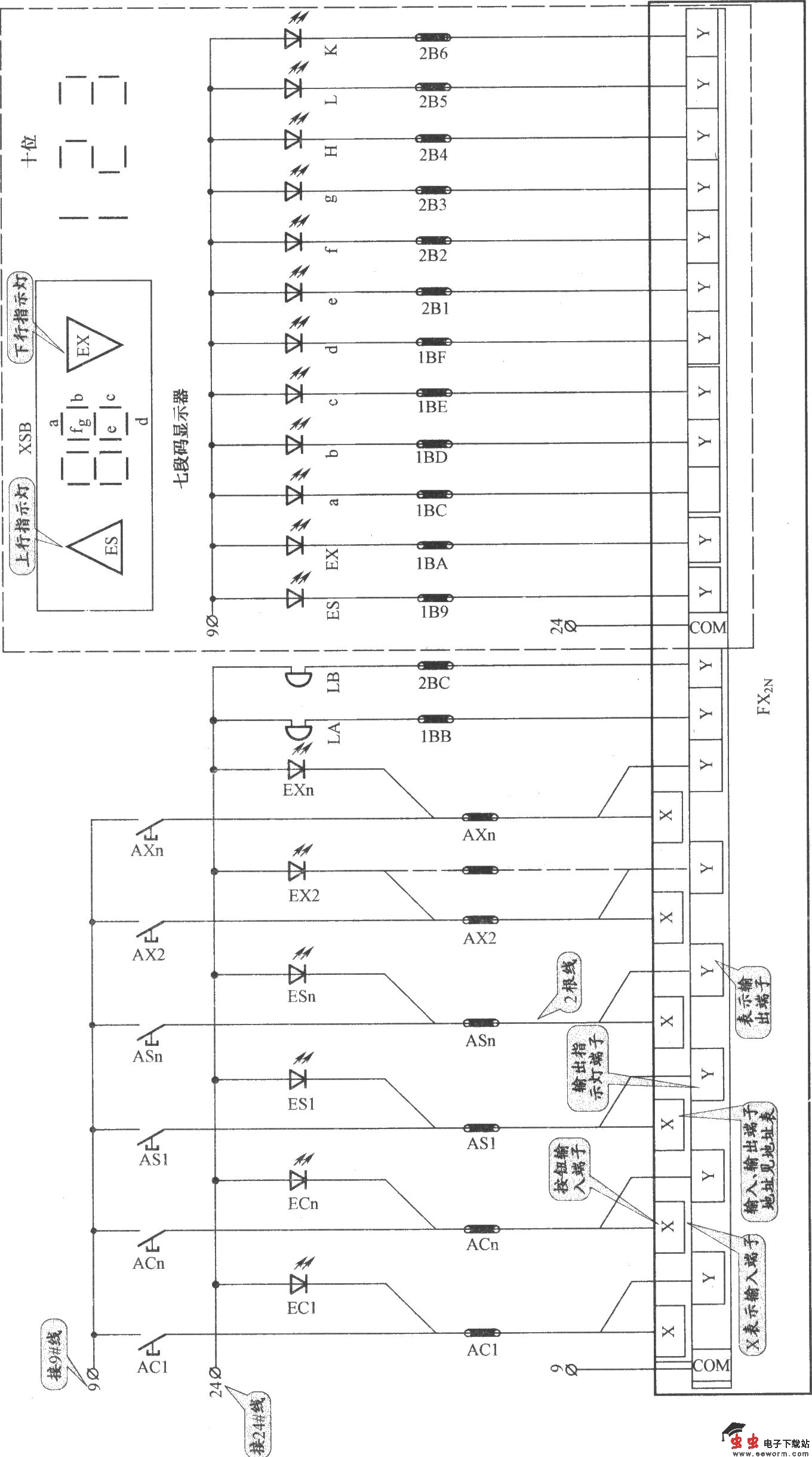
北京五洲电梯内选与楼层指示电路:

北京五洲电梯控制柜

北京五洲电梯照明电路:

北京五洲电梯控制柜 

觉得这篇文章有帮助吗?